h免费在线观看_亚洲热在线视频_四虎影院免费看_国产在线视频三区_三级欧美在线_四虎av网址

  • 服務熱線:021-80370923

氣動三通球閥

氣動三通球閥圖片

氣動三通球閥

  • 閥門型號:Q644F/H,Q645F/H,Q614F/H,Q615F/H
  • 通徑規格:法蘭DN15~DN300,螺紋DN15~DN50
  • 結構形式:三通L型,三通T型
  • 閥體材質:鑄鋼WCB、不銹鋼304、不銹鋼316
  • 公稱壓力:PN10、PN16、PN25、PN40、PN64
  • 適用溫度:-20℃~450℃
  • 應用范圍:氣體、水、蒸汽、液體、油品、腐蝕性介質等
  • 產品特點:一閥多用,分L型和T型,達到換向、分配、合流、分流

氣動三通球閥簡介:

氣動三通球閥是用于管道中介質換向、合流及分流的作用,主要由T型或L型三通球閥與氣動執行器連接組成,按連接方式不同可分為法蘭及內螺紋。氣動三通L型球閥是對兩條相互垂直的通道進行介質流向的切換或截斷,起到分配作用,而T型球閥不僅可對介質流向進行切換,還可以使三個通道互相連通或關閉其中任意一條通道,起到分流、合流作用?筛鶕r需要,在氣動三通球閥執行器上加裝閥門定位器及其它相關配件,即可控*球閥球芯的運轉,達到對管路中介質的自動化控*。
氣動三通球閥(法蘭)
氣動法蘭三通球閥                                 氣動內螺紋三通球閥
氣動三通球閥優點:

1、可選用不同連接形式,分為氣動法蘭三通球閥和氣動螺紋三通球閥,滿足不同使用工況。
2、密封效果極佳,采用軟密封四氟乙烯彈性變形可達到無泄漏密封。
3、一閥多用:可*成L型通口,也可*成T型通口,達到分配、合流、分流等功能。
4、氣動三通球閥安裝方便,可用任一通口作為介質的流通入口,并且無泄漏。
5、廣泛適用于環保、油品、冶金、蒸汽、能源、造紙、食品等管路系統中對介質
進行流向改變或達到對介質分流或混合。
氣動三通球閥標準規范:
 
1.設計和*造:GB/T12237-1989;APl608。
2.檢驗和試驗:GB/T13927-1992;APl598。
3.法蘭連接:JB/T79]一2-1994;ASME/ANSIB165。
4.結構長度:JD-2002

回訊器:也叫限位開關,遠程反饋開關信號(防爆)
電磁閥:雙作用選二位五通、單作用選二位三通(防爆)
三聯件:可對氣源穩壓、過濾、氣缸加潤滑油
閥門定位器:輸入4~20mA信號,實現閥門調節功能YT-1000R
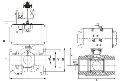
氣動三通球閥結構圖
  氣動法蘭三通球閥結構圖                    氣動內螺紋三通球閥結構圖
氣動三通球閥技術參數:

公稱通徑 DN10~DN300(mm) (螺紋1/2"~2")
公稱壓力 PN1.0、1.6、2.5、4.0、6.4MPa
驅動形式 壓縮空氣4-7bar(可帶手動裝置)
連接方式 法蘭式、內螺紋連接
結構形式
L型三通閥體、T型三通閥體
動作范圍 0~90°    0~180°
使用溫度
PTFE:-29~+178℃,PPL:-29~+300℃
適用介質 水、蒸汽、液體、油品、腐蝕性介質等
控*方式 開關模式,調節型(定位器4-20mA模擬信號)
作用形式 單作用彈簧復位(常開型,常閉型),雙作用(氣開氣關)

氣動三通球閥流向原理說明:
 
氣動三通球閥根據結構形式及流通方向不同分為L型和T型,介質流通方向圖如下。
氣動三通球閥原理
                              T型三通球閥流向圖                                                                                    L型三通球閥流向圖
 
L型三通球閥只能連接或截斷兩條相互垂直正交的管道,
不能同時保持第三條管道的相互連通,只起到分配作用。
T型三通球閥能使三條正交的管道相互聯通或切斷任意第三條通道,
達到兩進一出或一進兩出的的功能,起到分流、合流作用。
 
氣動三通球閥性能參數:

公稱通徑DN(mm) DN15-300
公稱壓力 PN(MPa) 1.0 1.6 2.5 4.0 6.4
試驗壓力 強度試驗 1.5 2.4 3.8 6.0 9.60
密封試驗 1.1 1.8 2.8 4.4 7.04
低壓氣密試驗 0.4~0.7
適用介質 氣體、水、油品、蒸汽或腐蝕性介質(常溫,低溫,高溫)
 
上一篇:氣動調節球閥 下一篇:氣動固定式球閥